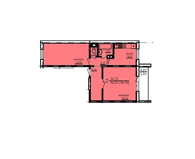
Тип жилья 2-комнатная за 30000 USD | ||
| Район |
![]() ![]() ![]() ![]() |
|
| Пересечение улиц | Челябинск | |
| Цена | 30000 USD | |
| Описание | Жилой квартал «Славный» - это отличные квартиры в центре Копейска. Их главное преимущество в отделке комфорт-класса: пол - ламинат 32 класса; обои - виниловые; в санузле - австрийская керамическая плитка до потолка, вся сантехника; качественные межкомнатные двери «Краснодеревщик»; надежные входные двери «Бульдорс»; застекленные лоджии с распашными створками;все приборы учета. В настоящее время в продаже панельный дом 97 серии. Сдача - 1 квартал 2015 года. проектная декларация на www.stukanet.ru | |
| Контактная информация | 83517766250 89514449006 Сергей | |
Скажите, что звоните по объявлению с сайта Kostanay.asia
| ||
|
| ||


33881











